создаем гармонию
Выгодная цена: 2 379 150 руб. -15%
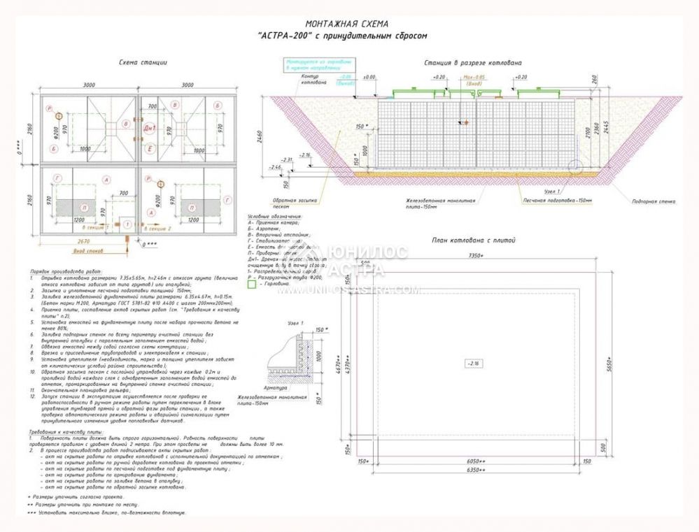
Цена: по запросу
Акция!
Цена под ключ:
Посмотреть смету
Наши услуги

Замер и смета

Доставка

Монтаж и запуск

Обслуживание
и ремонт

Консервация на зиму

48 часов от звонка
до установки
Почему выбирают нашу компанию?
Работаем без предоплаты
Оплата за септик/автономную канализацию - при получении.
Не бросим Вас после продажи
Вот уже 11 лет мы не только ставим септики, но и обслуживаем их. Знаем станции вдоль и поперек. Как они устроены и чего от них ждать. Многие "установщики" вообще не понимают, что продают и как оно будет дальше работать.
Экономим Вам деньги
Мы работаем БЕЗ наценок на продукцию.
Делаем дополнительные работы
Вам требуется что-то ещё? Занимаемся также: подводом воды, дренажом, ливневкой, водопроводом, отоплением и другими строительными работами.
Наши менеджеры помогут быстро и правильно подобрать оптимальный вариант септика
Сертификаты и экспертное заключение
Выполненные монтажи
Видеогалерея
Остались вопросы или нужна консультация? Наши менеджеры с радостью помогут Вам
Как мы работаем
Оформление заявки
Бесплатный выезд инженера
Согласование плана и подписание договора
Проведение монтажных работ
Отличный результат